In begehrter Lage der Prinz-Ludwigs-Höhe befindet sich diese außergewöhnlich gut geschnittene Eigentumswohnung im 1. Obergeschoss eines gepflegten Mehrfamilienhauses.
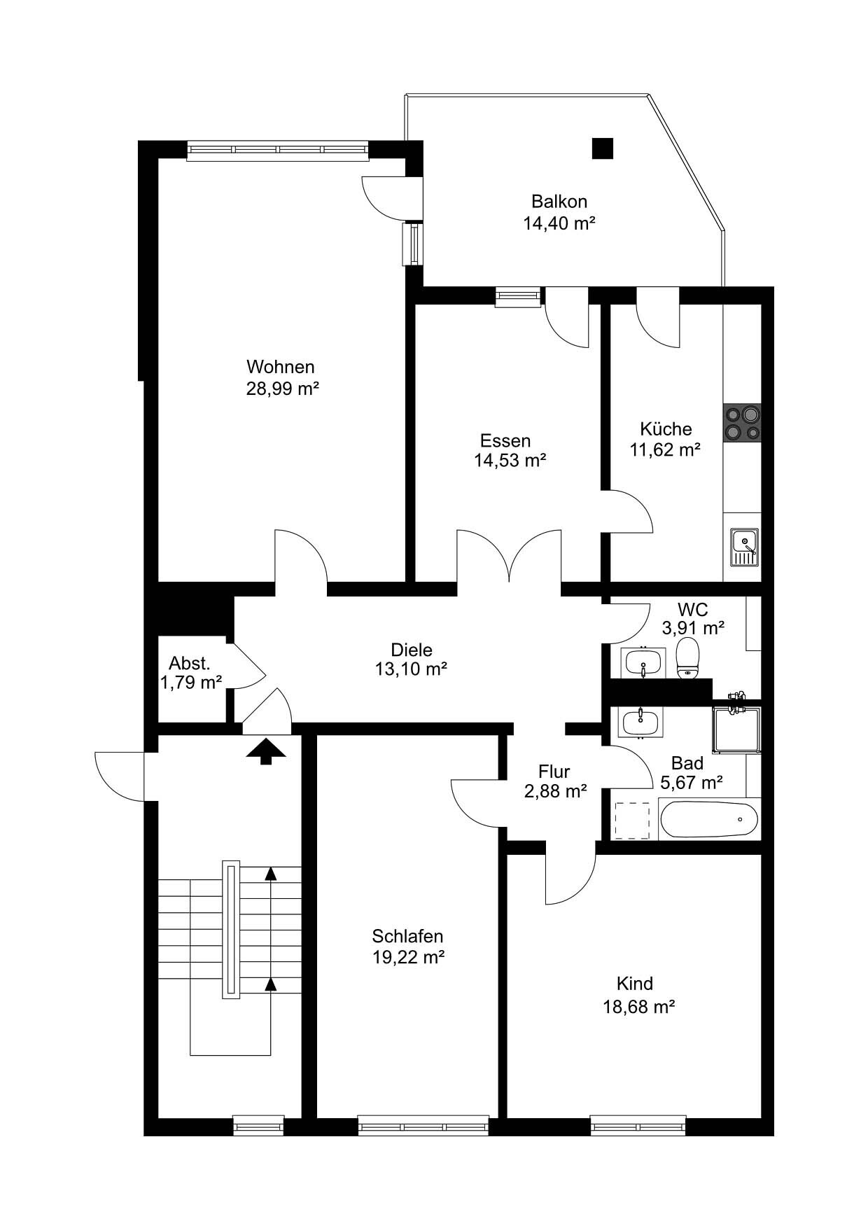
Auf ca. 127 m² Wohnfläche überzeugt die Wohnung durch einen weitläufigen Grundriss, der ein offenes und zugleich harmonisches Wohngefühl vermittelt. Die Raumaufteilung umfasst ein großzügiges Wohnzimmer, zwei Schlafzimmer sowie ein vollwertig nutzbares Esszimmer, das als eigenständiger Wohnraum gestaltet ist und den Zugang zur Küche bildet. Die Proportionen der Räume ermöglichen vielseitige Nutzungsoptionen und unterstreichen die hochwertige Wohnqualität.
Ein besonderes Highlight ist die überdachte Terrasse, die freien Blick ins Grüne bietet. Sie erweitert den Wohnraum auf ideale Weise und schafft einen geschützten Außenbereich mit hoher Aufenthaltsqualität.
Hochwertige Einbauschränke bieten zusätzlichen Stauraum. Das Badezimmer verfügt über Badewanne und separate Dusche.
Diese Immobilie eignet sich ideal zur Eigennutzung wie auch als nachhaltige Kapitalanlage in einer der gefragtesten Wohnlagen Münchens.
Ausstattungsmerkmale:
- großzügiger Grundriss
- überdachte Süd/Ost-Loggia (14,40 m² zu 1/2 in die Wohnfläche gerechnet)
- diverse Schreinereinbauten
- zusätzliche Fußbodenheizung in den gefliesten Räumen
- weißer Laminat
- Schallschutzfenster Klasse 4 in den Schlafräumen
- voll ausgestattete Einbauküche
- separate Abstellkammer mit schreinergefertigten Einbauten
- 1 Badezimmer mit Badewanne und sep. Dusche
- 1 Gäste-WC
- 1 Kellerabteil
- Fahrradkeller
- Tiefgaragenstellplatz
| Wohnungstyp: Etagenwohnung |
| Baujahr ca.: 1980 |
| Qualität der Ausstattung: normal |
| Anzahl Schlafzimmer: 2 |
| Anzahl Badezimmer: 1 |
| Etage: 1. OG |
| Anzahl Parkplätze: 1 |
| Stellplatz-Preis: 30.000 € |
| Stellplatztyp: Tiefgarage |
| Balkon/Terrasse Fläche ca.: 14,4 m² |
| Keller |
| Gäste-WC |
| Einbauküche |
| Balkon / Terrasse |
| Abstellraum |
| Energieausweis: Ausstellungsdatum: 30.01.2019 |
| Energieausweis: gültig bis: 29.01.2029 |
| Energieausweistyp: Verbrauchsausweis |
| Energieeffizienzklasse: D |
| Wesentlicher Energieträger: Gas |
| Energieverbrauchskennwert: 127 kWh/(m²*a) |
| Heizungsart: Gas-Heizung |
| Energieverbrauch für Warmwasser enthalten |
| Baujahr Anlagentechnik: 2004 |
| Translation missing: de.simple_form.labels.defaults.duplicated |
| Objekt ID | D5399 |
| Immobilientyp | Etagenwohnung |
| Wohnfläche | 127,59 m² |
| Zimmer | 4 |
| Preis | 1.120.000 € |
| Provision | 2,38 % inkl. Mehrwertsteuer |
München-Solln ist eine besondere Wohnlage im Münchner Süden mit bester Infrastruktur, Bus und S-Bahn-Anschlüssen, Kindergärten, Volksschule und weiterführenden Gymnasien sowie einer guten Anbindung zu den Autobahnen. In die Münchner City benötigt man lediglich ca. 15 Minuten. Die Geschäfte für den täglichen Bedarf sowie Arztpraxen, Apotheken, Krankenhäuser und Banken sind in wenigen Minuten erreichbar.
Die Prinz-Ludwigs-Höhe ist besonders geprägt durch ihre prächtigen historischen Villen, wodurch dieser Stadtteil sich unter anderem zur absoluten Bestlage Sollns zählen darf. Die Villen entstanden Ende des 19. Jahrhunderts in einem Naherholungsgebiet im Süden Münchens und boten privilegierten Familien schon damals beste Verkehrsanbindung in die Innenstadt mit der Isartalbahn, gute Infrastruktur und sehr gute Schulen – all dies wie heute in grüner Parklandschaft und bei bester Luft.
In der näheren Umgebung gibt es eine Vielzahl von Freizeitmöglichkeiten, wie Rad- und Wanderwege an der Isar und am Isarhochufer, einen 9-Loch Golfplatz, Schwimmbäder und Sportanlagen, z.B. den renommierten Tennisclub Großhesselohe und die beliebte "Waldwirtschaft", einer der bekanntesten und schönsten Biergärten von München.
Maklerprovision: 2,38 % inkl. Mehrwertsteuer. Der Immobilienmakler hat einen provisionspflichtigen Maklervertrag mit dem Verkäufer in gleicher Höhe abgeschlossen.
Sie müssen den Inhalt von reCAPTCHA laden, um das Formular abzuschicken. Bitte beachten Sie, dass dabei Daten mit Drittanbietern ausgetauscht werden.
Mehr InformationenSie sehen gerade einen Platzhalterinhalt von Turnstile. Um auf den eigentlichen Inhalt zuzugreifen, klicken Sie auf die Schaltfläche unten. Bitte beachten Sie, dass dabei Daten an Drittanbieter weitergegeben werden.
Mehr Informationen