Inmitten der malerischen Hügellandschaft der sogenannten „Istrischen Toskana“, ca. 15 km vom Meer entfernt, entsteht in der charmanten Gemeinde Lasici eine außergewöhnliche Villa auf einem traumhaft gelegenen Grundstück – eine echte Rarität in dieser gefragten Region Kroatiens.
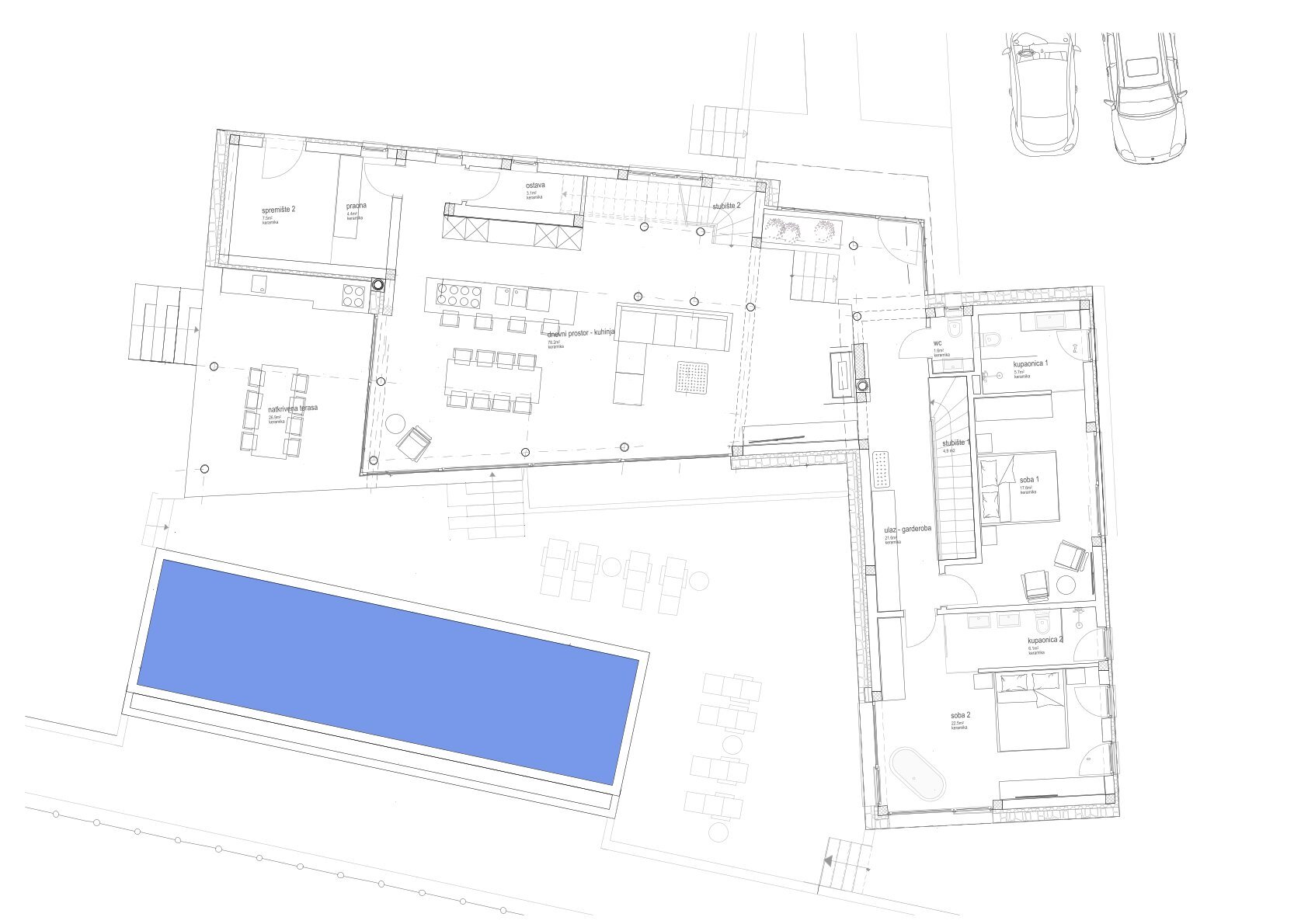
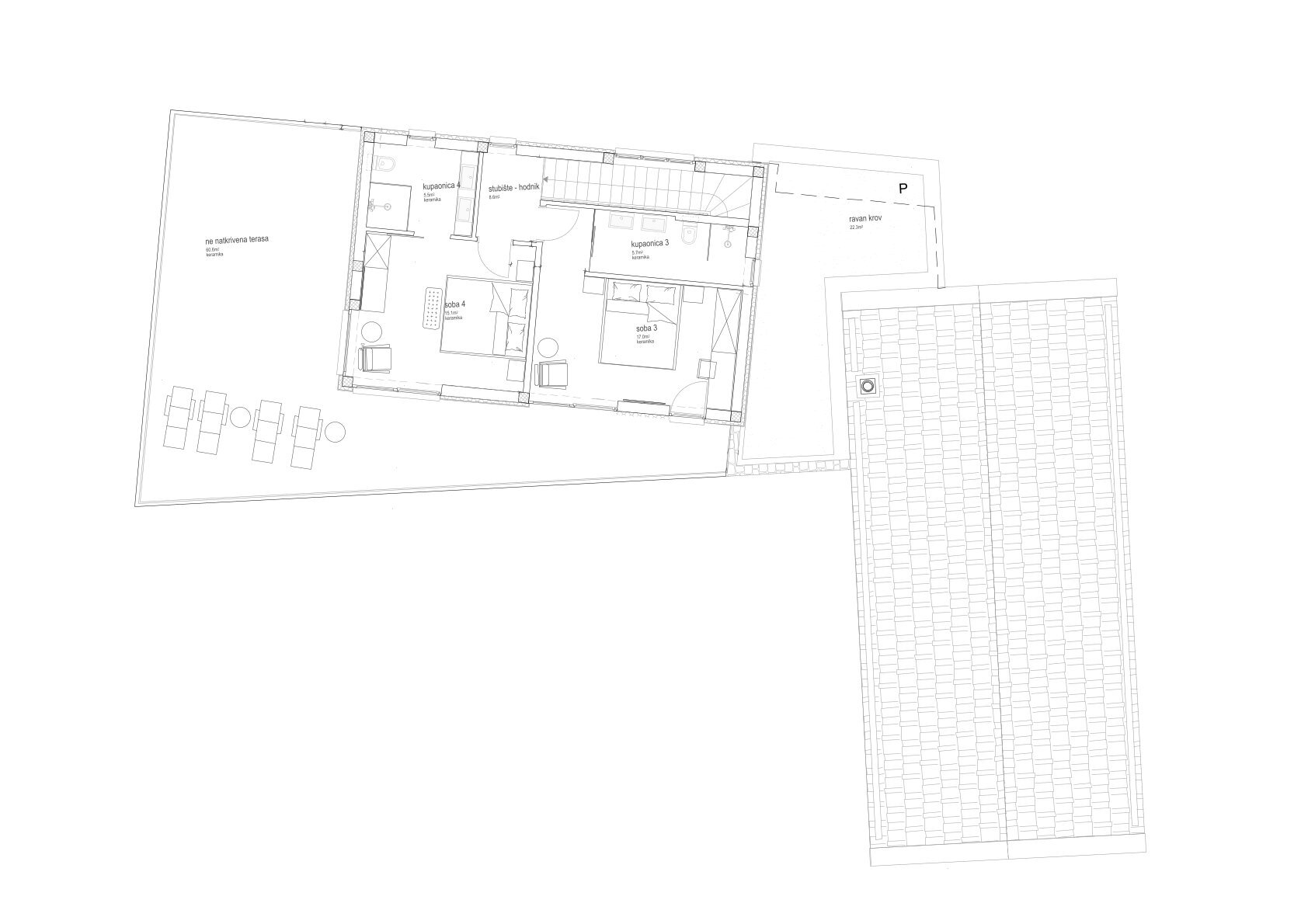
Die einzigartige Villa wird in moderner Split-Level-Bauweise errichtet, was sich perfekt in das natürliche Gefälle des Hangs einfügt. Die außergewöhnlichen Grundrisse spiegeln die spannende Architektur mit versetzten Ebenen perfekt wieder.
Das absolute Highlight ist das ca. 80 m² große Sonnendeck mit Meerblick. Genießen Sie hier die Sonne und das Leben!
Eine exklusive Designer-Küche sowie eine stilvolle Inneneinrichtung samt Lichtkonzept runden das Bild ab und sind bereits im Kaufpreis enthalten.
Grundstücke in dieser Lage mit solch einem freien Ausblick und dieser Ruhe sind durch den anhaltenden Bauboom kaum noch zu finden – hier bietet sich die seltene Gelegenheit, eine Immobilie mit absolutem Seltenheitswert zu erwerben. Ein Rückzugsort, der Natur, Kultur, Erholung und stilvolles Wohnen auf einzigartige Weise verbindet.
Highlights:
- Meerblick & spektakuläre Sonnenuntergänge dank Südwest-Ausrichtung
- Pool mit Panoramablick
- Kamin innen & außen – für stilvolle Abende in jeder Jahreszeit
- Sonnenterrassen & überdachter Freisitz
- Sommerküche für gesellige Stunden im Freien
- Stellplätze sowie Option auf ein Carport
- Wellnessbereich mit Sauna (je nach Bauphase & Wunsch gestaltbar)
| Haustyp: Villa |
| Baujahr ca.: 2026 |
| Qualität der Ausstattung: luxuriös |
| Objektzustand: Erstbezug |
| Anzahl Schlafzimmer: 4 |
| Anzahl Badezimmer: 4 |
| Anzahl Parkplätze: 3 |
| Gäste-WC |
| Einbauküche |
| Balkon / Terrasse |
| Garten / -mitbenutzung |
| Abstellraum |
| Kamin |
| Pool |
| Sauna |
| Bauphase: Haus in Planung (projektiert) |
| Baujahr Anlagentechnik: 2026 |
| Objekt ID | D5377 |
| Immobilientyp | Villa |
| Wohnfläche | 290 m² |
| Grundstücksfläche | 1.102 m² |
| Zimmer | 5 |
| Preis | 1.600.000 € |
| Provision | 3,75% inkl. MwSt. |
Hinweis: Die Angabe der Adresse unter der Verkaufsschlagzeile entspricht nicht der tatsächlichen Adresse.
Diese besondere Immobilie befindet sich in fast absoluter Alleinlage am Hang – unverbaubar, nach Südwesten ausgerichtet, mit freiem Blick über die sanft geschwungene Landschaft, gesäumt von Olivenhainen, Weinreben und Zypressen. Die Ruhe und Weite der Natur verschmelzen hier mit der unmittelbaren Nähe zu den charmanten Dörfern und Städtchen der Umgebung, die alles für den täglichen Bedarf bieten.
Ob Weinverkostungen auf benachbarten Weingütern, kulturelle Ausflüge, Fahrradtouren, Wanderungen oder der Sprung ins nahegelegene Meer – hier beginnt das Leben direkt vor der Haustüre.
Sie müssen den Inhalt von reCAPTCHA laden, um das Formular abzuschicken. Bitte beachten Sie, dass dabei Daten mit Drittanbietern ausgetauscht werden.
Mehr InformationenSie sehen gerade einen Platzhalterinhalt von Turnstile. Um auf den eigentlichen Inhalt zuzugreifen, klicken Sie auf die Schaltfläche unten. Bitte beachten Sie, dass dabei Daten an Drittanbieter weitergegeben werden.
Mehr Informationen